Песочный дворик, стилизованный под Кремль, должен представлять собой устойчивую, модульную конструкцию из игровых и развивающих элементов, обеспечивающие ребенку комфортные условия для игры на открытом воздухе. Песочный дворик должен состоять из 2-х башен с куполами, входной арки с порогом, песочницы, ограждением по периметру и декоративными элементами. К башне 1, с высотой площадки не менее 300 мм, должны быть пристроены: счеты, ограждение фанерное, перекладины, скамейка. К башне 2, с высотой площадки не менее 650 мм, должны быть пристроены: горка, лестница, фанерное ограждение, перекладины. Несущие столбы комплекса должны быть выполнены из клееного деревянного бруса сечением не менее 100х100 мм и иметь скругленный профиль с канавкой посередине. Сверху столб должен заканчиваться пластиковой заглушкой, снизу столб должен заканчиваться металлическим оцинкованным подпятником диаметром не менее 42 мм, который бетонируется в землю. Пол башен должен быть выполнен из деревянной доски толщиной не менее 40 мм. Горка должна состоять из ската, бортиков, защитной секции и защитной перекладины. Горка должна иметь стартовый участок высотой не менее 650 мм, участок скольжения и конечный участок. Скат должен быть изготовлен из единого листа нержавеющей стали толщиной 1,5 мм, утопленный в паз бортиков горки. Бортики горки, выполненные из влагостойкой фанеры толщиной не менее 21 мм должны быть высотой не менее 100 мм. Защитная перекладина должна быть выполнена из металлической трубы диаметром не менее 33 мм, побуждающая ребенка присесть и установлена на высоте не менее 600 мм от уровня поверхности стартового участка горки. Защитная секция горки должна быть выполнена из влагостойкой фанеры толщиной не менее 21 мм. Лестница высотой не менее 650 мм должна быть оснащена перилами, выполненные из деревянной доски толщиной не менее 40 мм, декоративными накладными элементами из влагостойкой фанеры толщиной 15 мм. Перила должны быть установлены от первой ступени. Ступени лестниц должны быть выполнены из ламинированной противоскользящей влагостойкой фанеры толщиной не менее 15 мм и деревянной доски толщиной 40 мм, склеенных между собой. Расстояние между ступенями должно быть одинаковым. Ограждение 1 по периметру песочного дворика с зубчатой верхней гранью и окошками, ограждения башни 1 и башни 2, скамейки, должны быть изготовлены из влагостойкой окрашенной фанеры толщиной не менее 21 мм. Входная фигурная арка должна быть установлена на несущих столбах и изготовлена из влагостойкой окрашенной фанеры толщиной не менее 21 мм. Песочница должна состоять из бортов, выполненных из деревянной доски толщиной не менее 40 мм, декоративного фанерного ограждения в наружном углу в виде крепости с окошками и угловых накладных элементов, выполненных из влагостойкой фанеры толщиной не менее 21 мм. Ограждение 2 по периметру песочного дворика должно быть выполнено из деревянной доски толщиной не менее 40 мм. Счеты должны состоять из двух металлических перекладин диаметром не менее 26 мм и пластиковых или деревянных «баранок». Перекладины должны быть выполнены из металлической трубы диаметром не менее 33 мм. Купол башен с декоративным флагом должен состоять из 4-х скатов, основания и 4-х обрамлений по периметру, выполненных из влагостойкой фанеры толщиной не менее 15 мм. Порог должен быть выполнен из клееного бруса сечением не менее 100х100 мм и влагостойкой ламинированной нескользящей фанеры толщиной не менее 21 мм, склеенных между собой.
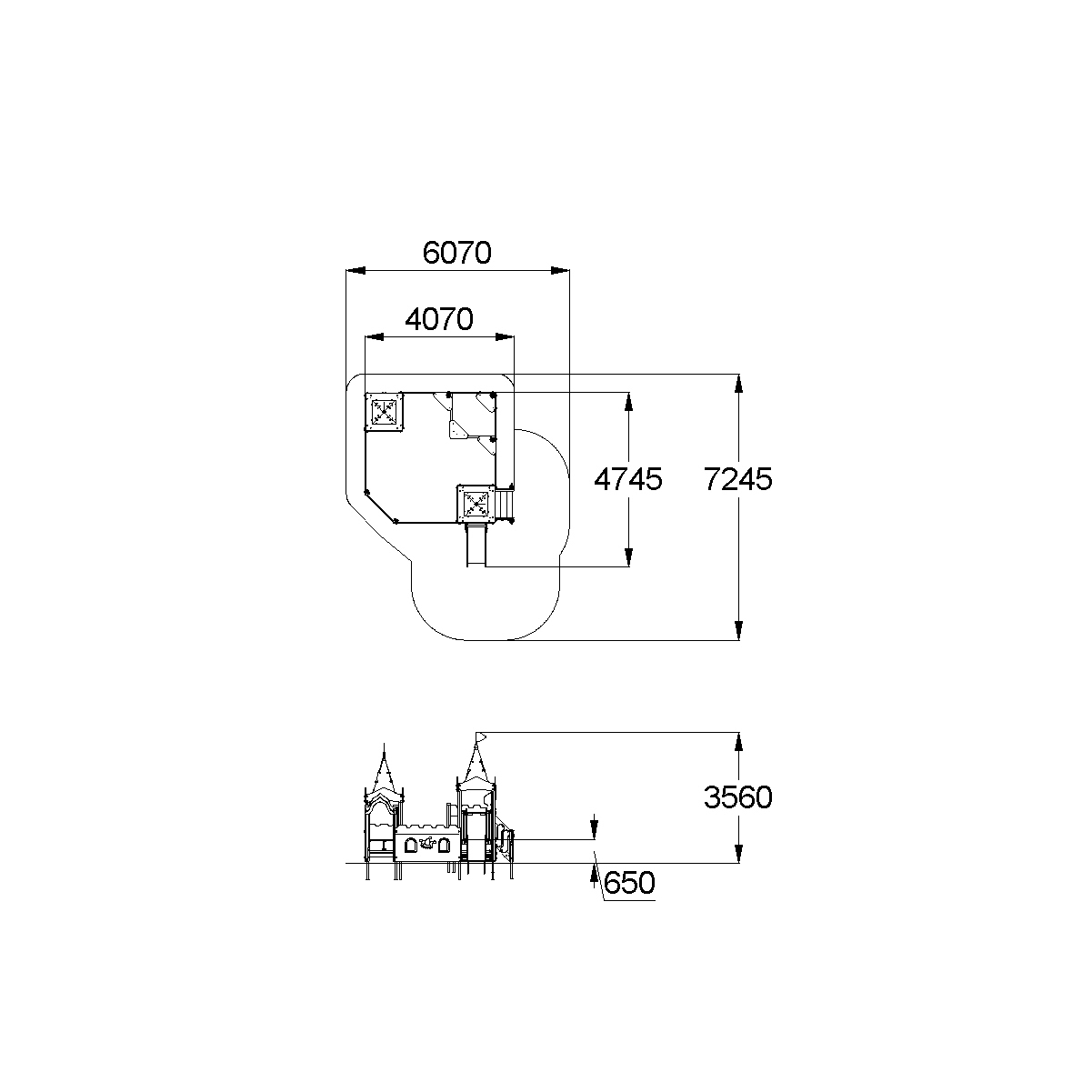
- Габаритные размеры: 4070x3560 мм
