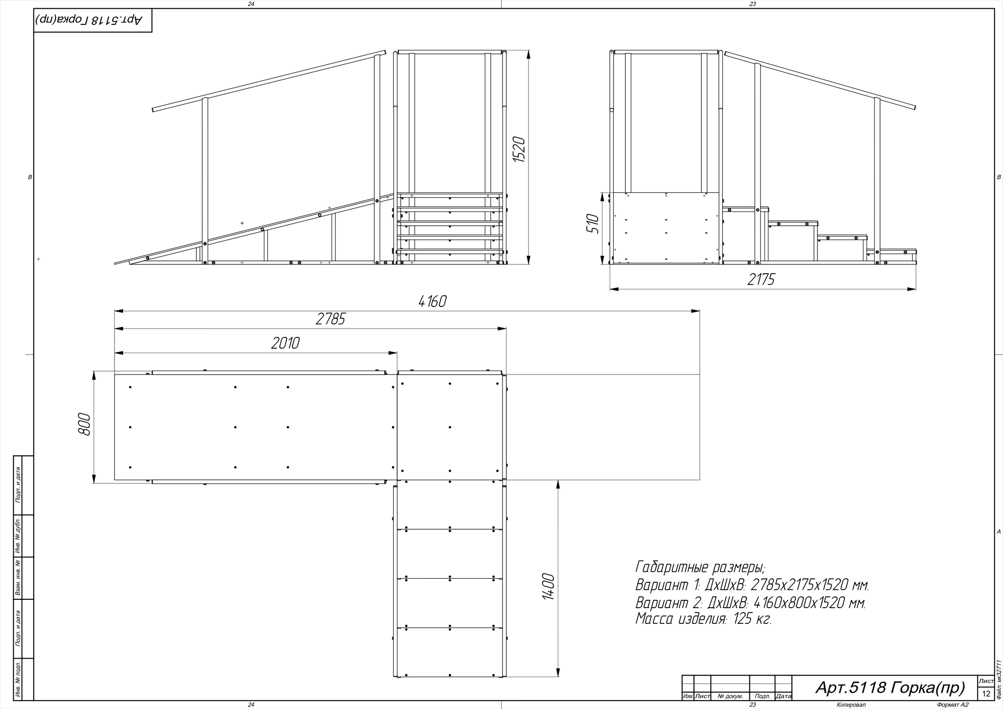
Горка предназначена для отработки навыков ходьбы при спуске и подъеме, а также ходьбе по лестнице. Выполнение упражнений тренирует мышцы ног и дает кардионагрузку. Для удобства и безопасности занимающихся горка оборудована перилами высотой 80 см.
Материал: металлический профиль, металлическая труба, порошковая окраска.
В базовом варианте вы можете выбрать черный или белый цвет, по желанию заказчика можно выбрать любой цвет.
Изготовление ступенек и пандуса возможно из нескольких материалов:
- в базовом варианте - фанера березовая многослойная 18 мм. Толщиной. (предназначена для использования в помещениях, не влагостойкая)
Для установки тренажера на открытом воздухе или в помещениях с повышенной влажностью выберите в дополнительных опциях фанеру влагостойкую с противоскользящей сеткой.
Тренажер устойчив и не требует дополнительного крепления к ровной поверхности.
Креплнение горки нужно в антивандальных целях или в условиях не выровненного основания. Крепления для горки может быть двух видов:
- анкерное крепление к бетонному основанию
- свайное (вкапывание и бетонирование ножек) для установки на песке или газоне.
Характеристики:
Длина комплекса - 3,1 м.
Ширина комплекса - 60 см.
Высота комплекса - 152 см.
высота перил - 80 см.
4 ступеньки
Глубина ступеньки - 18 см.
Высота ступеньки - 18 см.
Ширина ступеньки - 60 см.
Угол наклона пандуса 20о
Допустимая нагрузка 200 кг.
