Получайте заказы сразу, а платите за них постепенно.
-
25%
Платёж сегодня
-
25%
Через 2 недели
-
25%
Через 4 недели
-
25%
Через 6 недель
-
25%
Платёж сегодня
-
25%
Через 2 недели
-
25%
Через 4 недели
-
25%
Через 6 недель
-
25%
Платёж сегодня
-
25%
Через 2 недели
-
25%
Через 4 недели
-
25%
Через 6 недель
- Покупка уже ваша
- Выбирайте любые понравившиеся товары, сборка заказа начнётся сразу после оформления и оплаты первых 25% стоимости. 4 небольших платежа
- Плати частями – просто ещё один способ оплаты: сервис автоматически будет списывать по 1/4 от стоимости покупки каждые 2 недели.
- Нужно просто ввести ФИО, дату рождения, номер телефона и данные банковской карты.
- Соберите корзину.
- В способе оплаты нужно выбрать «Оплата частями».
- Спишем первый платёж и отправим вам заказ. Остальное — точно по графику.
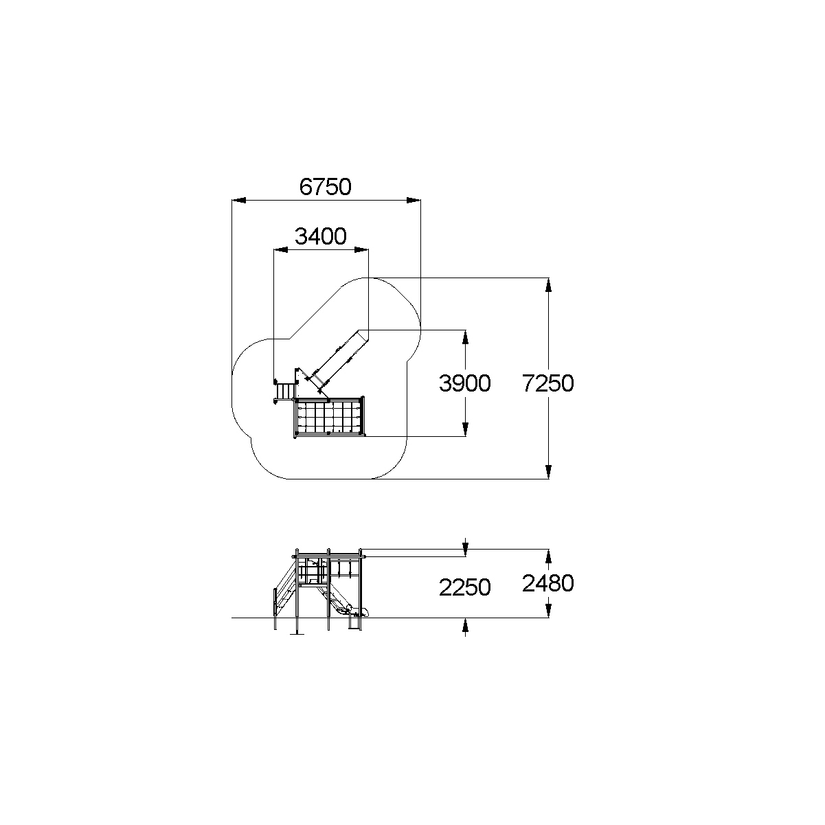
Детский игровой комплекс должен состоять из башни треугольной формы с вынесенным гимнастическим комплексом. К башне, с высотой площадки не менее 1245 мм, должны быть пристроены: лестница, горка, фанерное ограждение, перекладины. Вынесенный гимнастический комплекс должен представлять собой конструкцию, состоящую из несущих столбов, установленных в два ряда, параллельно друг другу. В каждом ряду несущие стойки в верхней части должны быть соединены балками и горизонтальными столбами. В верхней части должна быть расположена полипропиленовая сетка, боковые проемы гимнастического комплекса должны быть оснащены: шведской стенкой, гимнастическими кольцами, усиленными перекладинами канатом. Несущие вертикальные и горизонтальные столбы комплекса должны быть выполнены из клееного деревянного бруса сечением не менее 100х100 мм и иметь скругленный профиль с канавкой посередине. Сверху вертикальный столб должен заканчиваться пластиковой заглушкой желтого цвета, снизу столб должен заканчиваться металлическим оцинкованным подпятником диаметром не менее 42 мм, который бетонируется в землю. Пол башни должен быть изготовлен из влагостойкой ламинированной нескользящей фанеры толщиной не менее 21 мм. Фанерное ограждение должно быть выполнено из влагостойкой окрашенной фанеры толщиной не менее 21 мм. Лестница высотой не менее 1245 мм должна быть оснащена перилами, выполненными из деревянной доски толщиной не менее 40 мм. Перила должны быть установлены от первой ступени. Ступени лестниц должны быть выполнены из ламинированной противоскользящей влагостойкой фанеры толщиной не менее 15 мм и деревянной доски толщиной 40 мм, склеенных между собой. Расстояние между ступенями должно быть одинаковым. Горка должна состоять из каркаса, ската, бортиков, защитной секции и защитной перекладины. Каркас горки должен быть выполнен из металлической трубы сечением не менее 50х25 мм. Горка должна иметь стартовый участок высотой не менее 1245 мм, участок скольжения и конечный участок. Скат должен быть изготовлен из единого листа нержавеющей стали толщиной 1,5 мм, утопленный в паз бортиков горки. Бортики горки, выполненные из влагостойкой фанеры толщиной не менее 21 мм должны быть высотой не менее 150 мм. Защитная перекладина должна быть выполнена из металлической трубы диаметром не менее 33 мм, побуждающая ребенка присесть и установлена на высоте не менее 600 мм от уровня поверхности стартового участка горки. Защитная секция горки должна быть выполнена из влагостойкой фанеры толщиной не менее 21 мм. Перекладины шведской стенки, перекладины усиленные, балки должны быть выполнены из металлической трубы диаметром не менее 33 мм. Канат должен быть полиамидный или полипропиленовый диаметром не менее 40 мм и подвешен на перекладине выполненной из профильной трубы сечением не менее 50х25 мм с раскосами из трубы диаметром не менее 26 мм. Перекладина с гимнастическими кольцами должна быть выполнена из металлической профильной трубы сечением не менее 50х25 мм, гибкой подвески и колец из влагостойкой фанеры или пластика.
Габариты: L 3,57 x B 3,81 x H 2,50.